(0)

Дом Функциональный 110

Купить в 1 клик
Нет в наличии
Добавить в сравнение
Описание

Дом Функциональный

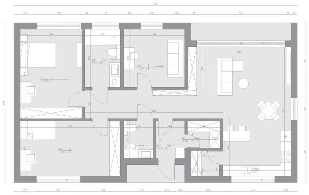
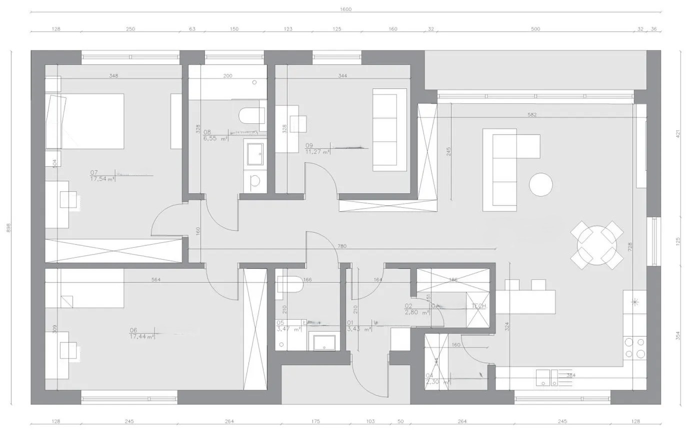
Жилая площадь 110 кв м

Общая площадь 128 кв м 

Просторный и очень функциональный по площади. В дом вместились три больших спальни, два санузла, большая кухня гостиная с кладовой в кухонной зоне, гардеробная и коридор. Имеется терраса.

Возможен в трех комплектациях  

Комплектации «Эконом», «Стандарт», «Премиум»

Параметр

Эконом

Стандарт

Премиум

Каркас

Заводской префаб

Заводской префаб

Заводской префаб

Материал каркаса

Доска 45×150/145 мм (сорт АБ) + контробрешетка 50*50

Доска 45×150/145 мм (сорт АБ)+ контробрешетка 50*50 

Доска 45×145/150 мм (сорт АБ) + контробрешетка 50*50

Антисептическая обработка

Цокольное перекрытие первого этажа

Полная обработка

Полная обработка

Лаги

45×190 мм, шаг 400 мм

45×190 мм, шаг 400 мм

45×190 мм, шаг 400 мм

Черновой пол

Доска камерной сушки 40×90 мм

Доска камерной сушки 40×90 мм

Доска камерной сушки 40×90 мм

Пароизоляция

Мембрана

Мембрана

Мембрана

Утеплитель (каменная вата)

Стены: 150 мм Пол: 150 мм Потолок: 150 мм

Стены: 200 мм Пол: 250 мм Потолок: 250 мм

Стены: 250 мм Пол: 300 мм Потолок: 300 мм

Ветрозащита

Мембрана

Мембрана

Мембрана

Защита от грызунов

Сетка по периметру

Сетка по периметру

Сетка по периметру

Фасад

Имитация бруса неокрашенная

Имитация бруса окрашенная

Планкен/имитация бруса окрашенная (RAL)

Кровля

Металлочерепица

Металлочерепица

Гибкая черепица

Отделка цоколя

Отсутствует

Пластиковые панели + отливы в цвет

Пластиковые панели + отливы в цвет 

Окна

ПВХ профиль 60 мм

ПВХ профиль 70 мм

ПВХ профиль 70 мм

Стеклопакеты

Двухкамерные с энергосбережением

Двухкамерные с энергосбережением

Двухкамерные с энергосбережением

Внутренняя отделка стен

ГСПВ

Декоративные ламинированные панели

Декоративные ламинированные панели

Потолки

Гипсокартон (GYPROC)

Гипсокартон (Gyproc)

Гипсокартон/натяжные

Полы

ГСПВ

ГСПВ

ГСПВ + стяжка

Электрика

Гофрированная труба ПВХ

Гофрированная труба + черновая разводка

Черновая разводка + розетки + выключатели + бра + люстры

Терраса

Лиственница 28 мм (Вельвет, сорт В)

Лиственница 28 мм (Вельвет, сорт А)

Лиственница (Вельвет, сорт Прима)

Входная дверь

Металлическая

Металлическая Torex

Torex с терморазрывом

Инженерные системы

Отсутствуют

Отсутствуют

Теплые полы + котел

Канализация

Отсутствует

Отсутствует

Септик Евролос

Контроль качества

Фотоотчёты о ходе производства и монтажа в чате, персональный менеджер, проверка теплового контура с помощью аэродвери и тепловизора

Фотоотчёты о ходе производства и монтажа в чате, персональный менеджер, проверка теплового контура с помощью аэродвери и тепловизора

Фотоотчёты о ходе производства и монтажа в чате, персональный менеджер, проверка теплового контура с помощью аэродвери и тепловизора

       

Примечание: все комплектации включают ветро-гидроизоляционную мембрану, пароизоляцию и защиту от грызунов.

  • ГСПВ — гипсостружечная плита влагостойкая.

  • RAL — стандартная цветовая палитра для окраски древесины.

  • В комплектации «Премиум» добавлены полноценные инженерные системы (отопление, канализация) + Бонус .

  • Толщина утеплителя и параметры профиля окон последовательно увеличиваются от «Эконом» к «Премиум», что повышает энергоэффективность дома.

  • Фасадные решения варьируются от утилитарных (ГСПВ) до эстетически выразительных (планкен, гибкая черепица).

 

Показать полностью Свернуть
Характеристики
Площадь дома
60-100 кв м
Отзывы
Отзывов еще никто не оставлял
Написать отзыв Отмена
Оставить отзыв
Перед публикацией отзывы проходят модерацию
Напишите нам
Запрос успешно отправлен!
Имя *
Телефон *
Сообщение *
Предзаказ
Предзаказ успешно отправлен!
Имя *
Телефон *
Заявка

Я ознакомлен и согласен с условиями оферты и политики конфиденциальности.

Заказ в один клик

Я ознакомлен и согласен с условиями оферты и политики конфиденциальности.